
Lot 116 Te Mania
For Sale
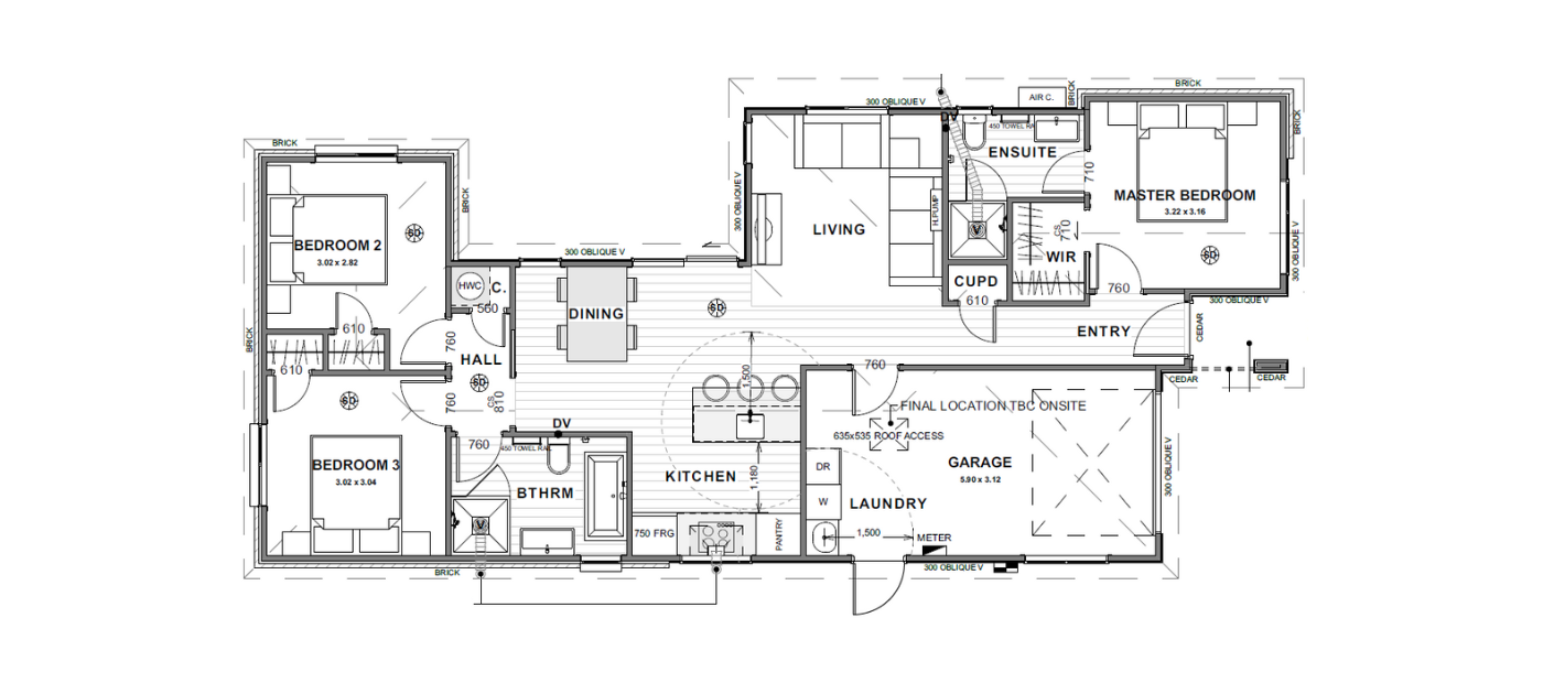
Te Mania | Thoughtful Design & Quality Craftsmanship
This neat and tidy home and land package will stand proud in Te Pukes' newest, master-planned subdivision. Meeting the needs of many home owners and investors, this is a package you must look at immediately.
Featured inclusions:
- Reliable brick, James Hardie or cedar external claddings
- Landscaping plan including outdoor living spaces, planting, clothesline, & letterbox
- Soft-close kitchen cabinets & drawers with 20mm engineered stone kitchen benchtop
- Bosch wall oven, ceramic hob, dishwasher & Robinhood range hood
- 36oz solution dyed nylon carpet with 11mm underlay & designer range vinyl flooring
- Healthy Homes standard heat pump
- Quality bathroom fittings & fixtures from brands
- Council building consent, Builders Risk & Public Liability insurance
- 10 year Master Builder Guarantee
About Te Mania:
Te Mania is a carefully considered, medium density development located in Te Puke which is part of the wider Bay of Plenty – famous for its warm climate, great beaches and thriving, diverse economy. See http://www.temania.nz for more information.
Sales Consultant
Brendyn Gray
Phone: 07 543 4221
Mobile: 027 256 4409
Email: sales@flowerdayhomes.co.nz
Sales Consultant
Mark Hooper
Phone: 07 543 4221
Mobile: 021 841 275
Email: sales@flowerdayhomes.co.nz
Features
- Reliable brick, James Hardie or cedar external cladding
- Landscaping plan including driveway, clothesline, & letterbox
- Soft-close kitchen cabinets & drawers with 20mm engineered stone kitchen benchtop
- Bosch wall oven, ceramic hob, dishwasher & Robinhood range hood
- 36oz solution-dyed nylon carpet with 11mm underlay & designer range vinyl flooring
- Healthy Homes standard heat pump
- Quality bathroom fittings & fixtures from brands
- Council building consent, Builders Risk & Public Liability insurance
- 10 year Master Build guarantee













